VILLETTA A SCHIERA CON TAVERNA , BOX DOPPIO E GIARDINO

Alzano Lombardo (Bergamo)

Rif: BAS399M
Condividi Linkedin Whatsapp Stampa
€ 399.000
Villa a schiera
220 Mq
4 Vani
Giardino
Classe energetica F
3 Camere
3 Bagni
Garage
In elegante complesso residenziale proponiamo VILLETTA A SCHIERA con taverna, giardino privato e box auto doppio in larghezza.

Villa a Schiera di 220 mq. dallo stile classico ma con sorprendenti soluzioni contemporanee integrate che migliorano il comfort e la funzionalità dell'abitazione.
La prima impressione è quello di una bella casa tradizionale , solida , una casa che mantiene il fascino della tradizione ma che parla il linguaggio della vita odierna.

DESCRIZIONE:

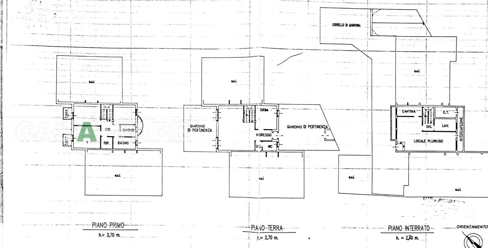
La proprietà in vendita è distribuita su tre livelli collegati fra loro internamente da un'elegante scala in muratura, si presenta in ottime condizioni ed è così composta :

PIANO TERRA: ingresso, ampia cucina abitabile, salone doppio , sala pranzo e bagno. Dalla zona giorno due porte finestre consentono l'accesso al giardino, presente fronte e retro la casa per un totale area verde di 110 mq.

PIANO PRIMO : zona notte contenente tre camere da letto di cui due con balcone e doppi servizi.

PIANO INTERRATO: locale pluriuso/taverna con grande camino e forno per pizze. Locale lavanderia, cantina, locali tecnici e accesso diretto a corsello condominiale dove si trova l'ampio box doppio in larghezza.


Zona : A pochi chilometri da Bergamo, in zona residenziale di ville e villette servita per ogni necessità.


Libera subito.

PER ULTERIORI INFORMAZIONI , DETTAGLI O PER PRENOTARE LA TUA VISITA DI SOPRALLUOGO, CONTATTACI AL NR. 035.211320.

*Possibilità mutuo fino al 100%. Per preventivi mutuo su misura sono a tua disposizione i nostri consulenti finanziari.
Ai sensi della normativa vigente sulla tutela dei dati personali, la via indicata dal puntatore mappa è approssimativa.

Dettaglio immobile

Contratto Vendita
Rif BAS399M
Prezzo € 399.000
Provincia Bergamo
Comune Alzano Lombardo
Indirizzo Viale Piave
Superficie 220 mq
Vani 4
Camere 3
Bagni 3
Classe energetica F (DL 192/2005)
EPI 284.15 kwh/m2 anno
Riscaldamento autonomo
Condizioni ottime condizioni
Spese condominiali € 42
Ascensore no
Garage singolo si
Cantina si
Giardino
Cucina abitabile
Taverna si
Balcone si
Terrazza si

Consistenze

Descrizione Superficie Sup. comm.
Principali
Immobile - piano terra 220 Mq 220 Mqc
Totale 220 Mqc

Planimetrie

Richiedi maggiori informazioni

Autorizzazione al trattamento dei dati personali+
Dichiaro di aver letto l'informativa sulla privacy ed accetto le condizioni d'utilizzo del servizio.
Riempi il campo con il codice riportato nell'immagine*
Codice Captcha
Federazione Italiana Mediatori Agenti d’Affari
FIMAA
Chiamaci Contattaci